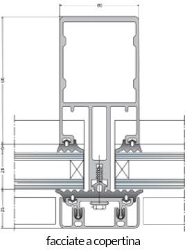
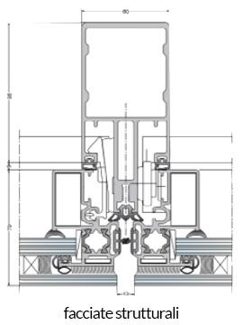
Serie di profilati per la costruzione di facciate continue di grande attualità, per le più svariate applicazioni. Sistemi a copertina, strutturali e semistrutturali, per coperture e pareti inclinate. L’inserimento nell’habitat urbano delle facciate continue costituisce oggi un “plus” dell’architettura moderna.




Profondità montante: 70/96/128 mm
Larghezza montante: 60 mm
Assemblaggio: 90°





